Offering NICET III Design, Estimating & more...
Need a project designed, overwhelmed with bids...
Need a project designed, overwhelmed with bids...
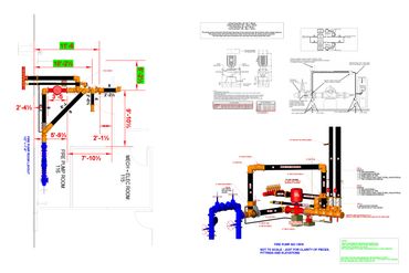
MBLB Fire Sprinkler Services, LLC is fully insured holding both Professional Liability as well as General Liability insurances. MBLB can offer NICET III design for your Automatic Fire Sprinkler projects using the latest AutoSprink software including REVIT. Design range includes - Commercial, Residential, Wet Systems, Dry Systems, Pre-Action Systems, New Systems and Renovations to existing systems. We also assist in Estimating, Budgeting, Material pick off/Listing and general Automatic Fire Sprinkler questions from Contractors/Architects/Engineers/Fire Marshals.
MBLB Fire Sprinkler Services, LLC was started by Marc Bielicki. After high school, he attended Alfred State College and graduated with an Associates Degree in Mechanical Design Engineering Technology. From there he got his first look in the fire sprinkler industry while working for an engineering firm as a CAD technician. In 2006, Marc made the move to work for a mechanical contracting firm as a fire sprinkler design trainee. In 2010 he passed all the necessary NICET testing for Level III in Water-Based Systems Layout Design, although he did not qualify until his 5 years of industry service in 2011. In 2011, he helped a young fire sprinkler contracting firm grow from $600k in sales to $3.5mil within a 3 year period. With his experience of growing that company, he was asked to come back to the previous mechanical contractor and later became co-manager of the fire sprinkler division. In 2017, Marc left contracting to try his hand as a sales rep for a material supplier. During his travels, he heard of the need for a higher level of consistent design.
In the summer of 2018, Marc decided to answer these calls, and opened MBLB Fire Sprinkler Services, LLC. During his time in the fire sprinkler contracting industry, Marc had moved up the ladder quickly from design trainee to co-manager. This was due to his eagerness to learn as well as his high level quality of work. Marc was also a project manager and an estimator; where he designed much of the work he was awarded at the request of the developers and/or general contractors with whom he had built relationships with throughout the years. He hopes to bring this style of service to the design side, and generate repeat customers with the personal touch he has.











Please send a message in the form above, or call the number provided below.
Open today | 09:00 am – 03:00 pm |
Email available 24/7, responses during work hours
Phone calls available during work hours
Thank You!!